fbpx
SOLGT

Sankt Thomas Alle 10 , 4. th., 1824 Frederiksberg C

SOLGT

OM BOLIGEN

Solbeskinnet penthouselejlighed på 205 etagemeter med mulighed for at færdiggøre skabelsen af et suverænt hjem på toppen af Frederiksberg C. Midt mellem Gammel Kongevej og Frederiksberg Allé - orienteret mod øst og vest, hilser denne suveræne herskabslejlighed lejlighed livet velkommen. Ejendommen er opført i 1914 og vidner om en storhedstid i vores arkitekturhistoriske arv.~

~

Lejligheden er undervejs i en gennemgribende istandsættelse og i skrivende stund udestår dele af istandsættelsen. Lejligheden overtages som den står, så man vil selv have alle muligheder for at skabe den drømmebolig, der har stået som ledestjerne for ens kommende lejlighed. Meget er gjort, og alt afhængigt af drømmene er der ikke så langt til mål. Mere end de sidste penselstrøg skal gøres, og det giver alle muligheder for at udfylde dette fantastiske lærred og for, at fuldende stedet og lade det leve op til dets fulde potentiale.~

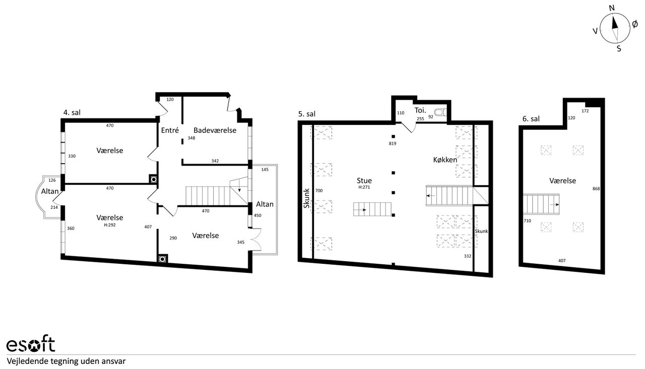
 Indretning: Entré til fordelingsgang som giver adgang til lejlighedens stueplan, hvor de tre rum kan indrettes som soveværelser/stuer. Fra begge sider er der udgang til altan. Herudover stort rum, hvor der kan etableres badeværelse. Elegant trappeløb til 1.sal som består af stort alrum og ekstra toilet. Trappe til 2.sal som byder på 32 m2 disponibelt rum som kan indrettes efter behov. Lejligheden henvender sig til det pladskrævende par eller familien, som ønsker at bo i en udsigtslejlighed hævet over byen, på en af Frederiksbergs mest populære adresser.

~

OPLYSNINGER OM BOLIGEN
KONTANT SOLGT
EJERUDGIFT /MD SOLGT
BOLIGAREAL 173 m2
VÆRELSER 5
ENERGIMÆRKE D
EJENDOMSTYPE EJERLEJLIGHED
BYGGEÅR/OMBYGGET 1914 / 0
KONTAKTPERSON

ADAM SCHNACK

ANSVARLIG INDEHAVER, EJENDOMSMÆGLER MDE & CAND.MERC. (PHIL.), SYN & SKØN FOR DANMARKS DOMSTOLE


+45 2623 4223

ADAM@ADAMSCHNACK.DK