fbpx

Åbent hus med tilmelding

d.01.februar 10:00-10:30

Østerbrogade 70 , 1. , 2100 København Ø

13.950.000 DKK

OM BOLIGEN

Veldisponeret, højloftet og gennemgående klassisk herskabslejlighed på 225 m2 (BBR). Der er ikke mange, der kan prale af at bo på selveste Trianglen, men her er muligheden. Her er muligheden for udsigt til det monumentære B.T.hus, der i folkemunde kaldes Bien. Henover Bien og i direkte akse er der udsigt til Fælledparkens hovedindgang hvor Statuen ’Genforeningen’ står i sin pragt. Udsigten til Fælledparken efterlader påmindelse om, at et af byens absolut mest storslåede naturområder ligger lige uden for døren.

Ejendommen blev opført i 1886 og fremstår som en stolt reference til tidens klassicistiske arkitektur. Et overflødighedshorn af detaljer og en rejse gennem de smukkeste håndværksmæssige elementer.

Lejligheden er blevet nænsomt restaureret efter at have tjent som lægepraksis i adskillige år. Der er blandt andet blevet etableret et badeværelse og køkken, som begge fremstår smagfulde og i nydelig stand. Lejligheden fortjener helt rimeligt den sidste opdatering for at nå sit fulde potentiale, og den giver i udgangspunktet nogle unikke og fantastiske rammer for at etablere sig i en af de mest vidunderlige boliger på Østerbro. 

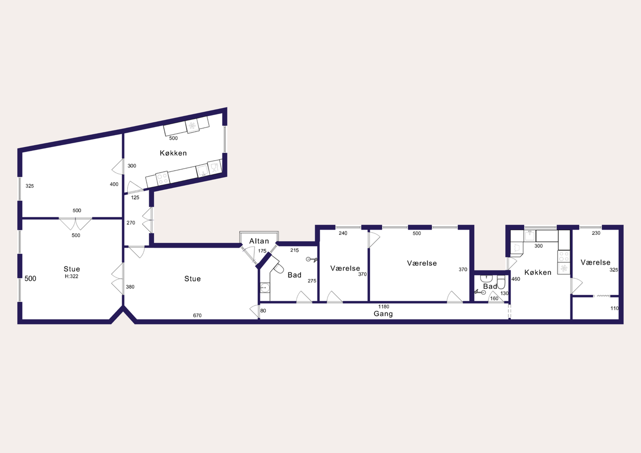
Lejligheden er indrettet med entré, der fører til køkken og den oprindelige spisestue – herfra er der adgang til lejlighedens øvrige to store stuer en suite, hvoraf den ene er en suite med køkkenet. Fra lejlighedens oprindelige spisestue er der en fordelingsgang til tre soveværelser og lejlighedens to badeværelser. I lejlighedens bageste arealer er der mulighed for at indrette yderligere værelser eller et stort værelse med badeværelse og walk-in, hvor der tidligere har været køkken og bryggers. 

Dette er en prægtig lejlighed med utallige muligheder for at realisere sine drømme om en eksklusiv bolig på indre Østerbro - tæt på Metro, skoler, parker og alle de attraktive indkøbsgader.

OPLYSNINGER OM BOLIGEN
KONTANT 13.950.000 DKK
EJERUDGIFT /MD 14.173 DKK
BOLIGAREAL 225 m2
VÆRELSER 6
ENERGIMÆRKE D
EJENDOMSTYPE EJERLEJLIGHED
BYGGEÅR/OMBYGGET 1886 / 1926
KONTAKTPERSON

JONATHAN VALENTIN

EJENDOMSMÆGLER MDE


+45 2825 4523

JONATHAN@ADAMSCHNACK.DK