fbpx
SOLGT

Eckersbergsgade 17 , 2100 København Ø

SOLGT

OM BOLIGEN

Kartoffelrækkehus på 182 etagemeter (BBR: 135 m2) med udgravet kælder, 2. sal til kip og familievenlig planløsning, orienteret mod lyset, og stille beliggende midt i kvarteret. Huset er nænsom renoveret med smagfuld forståelse for ejendommens oprindelige arkitektoniske formsprog, og fremstår i dag som en af de særlig fine boliger i kvarteret. En stille oase midt i byen, omgivet af Kartoffelrækkernes charmerende stemning, som uden lige forener fællesskab med privathed, og skaber en fin symbiose mellem inde- og uderum.

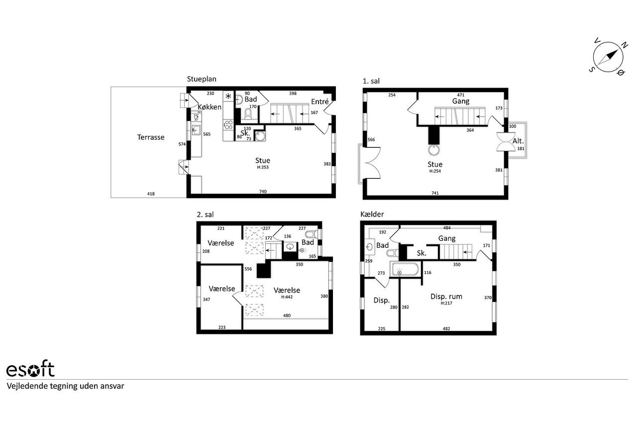
Indretning: Entré til stort køkkenalrum, snedkerbygget interiør fra Kvanum, smukke gulve, brændeovn og udgang til den skønneste gårdhave med eftermiddags- og tidlig aftensol. På stueetagen er der yderligere smagfuldt indrettet gæstetoilet. 1. salen er indrettet som ét stort åbent rum, opdelt i opholdsstue med yderligere en brændeovn (af ældre dato) og arbejdsværelse/studio, hvor der til den ene side er fransk altan mod gårdsiden - i bekvem plukke-højde til det rigt frugtbærende abrikostræ, og mod vest er der mindre altan med formiddags sol og skønt udsyn til gaden og de omkringliggende kartofler i rækkerne. 2. salen er åbnet op til kip med de mest vidunderlige gennemlysninger, og fordeler forældresoveværelse med snedkerbygget skabsvæg og taglys, børneværelse og skrivekrog (kan laves til yderligere et fint børneværelse). Desuden lækkert indrettet badeværelse med terrassogulv. 2. salen højde til kip tillader etableringen af en hems, hvis man skulle have brug for yderligere brugsarealer. Kælderen på 47 m2 (BBR) er udgravet og fordeler flere særdeles gode disponible rum, hvor det ene i dag er indrettet som teenager-værelse, der er skabsgang med vaskefaciliteter og opbevaringsrum. I hele kælderen er der støbte gulve, og gennemgående i etagen er der god loftshøjde og et godt klima

Den omkringliggende gårdhave, med udgang fra køkkenalrummet mod vest og fra entréen mod øst, er anlagt i fin balance mellem en japansk inspireret havekunst og et mere europæisk romantisk udtryk, hvor slyngplanter og espalieret æbletræer står side om side med smukt beskåret roser og afgrænset bede, der skaber en enorm dybde i haverummet. Et udemiljø af en særlig kaliber, der giver en naturlig bevægelse fra inde til ude. Et miljø, der med sine fine referencer, hylder kvarterets fortællinger, hvor havens æbletræer fortæller om dengang, der var æbleplantage på stedet; granitbelægningen kommer fra en kirke lige om hjørnet og har ligget under for utallige præsters forkyndelser af kristendommens budskaber, og folkets ulidelige bekendelser i flere hundrede år - og blåregnen har lyttet til kvarteret fuglestemmer i snart tretten år. Alt hér er en del af et eventyr, der er lige dele virkelighed og lige dele boligdrømme.

Kartoffelrækkerne, eller Farimagsgade-kvarteret som det også kaldes, består af 480 huse tegnet af arkitekt Frederiks Christian Bøttger og opført i 1873-1889. Oprindeligt bygget som arbejderboliger, hvor hver bolig husede tre familier. I dag bor der én familie i de fleste af husene, og i takt med at de nye generationer flytter ind, er der ikke meget arbejderklasse over kvarteret længere. Stedet er eksklusivt og uprætentiøst på samme tid. Vel nok den mest ædle form for liebhaveri, man kan forestille sig - lige der hvor arkitektonisk finesse og levested forenes.

Det store grundstykke, hvor Kartoffelrækkerne blev bygget i lige rækker, blev oprindeligt erhvervet af familien Reeh, som fra 1760 etablerede et gartneri på stedet. De forsynede Københavns voksende publikation med grøntsager, og deres primære produktion var kartofler. Siden blev grunden solgt fra til Arbejdernes Byggeforening, som opførte de ikoniske kartoffelrækkehuse.

OPLYSNINGER OM BOLIGEN
KONTANT SOLGT
EJERUDGIFT /MD SOLGT
BOLIGAREAL 135 m2
GRUNDAREAL 75 m2
VÆRELSER 5
ENERGIMÆRKE C
EJENDOMSTYPE VILLA
BYGGEÅR/OMBYGGET 1882 / 1930
KONTAKTPERSON

ADAM SCHNACK

ANSVARLIG INDEHAVER, EJENDOMSMÆGLER MDE & CAND.MERC. (PHIL.), SYN & SKØN FOR DANMARKS DOMSTOLE


+45 2623 4223

ADAM@ADAMSCHNACK.DK