fbpx

Åbent hus med tilmelding

d.03.maj 12:00-12:30

Akacievej 4 , 3100 Hornbæk

11.000.000 DKK

OM BOLIGEN

Luksuriøst og velproportioneret sommerhus fra 2021 med en af de skønneste adresser i Hornbæk. En slentretur fra Hornbæk Strand, tæt på naturskønne plantageområder, byen og havnen. Hornbæk er elsket af mange lige så lang tid vi alle kan huske. Og ikke uden grund, for Hornbæk er virkelig skønt. En levende by, der bevæger sig stille afsted. Sådan er det her – for som Peter Sommer så evigt rigtigt siger, hvorfor løbe, når man kan gå hele vejen. 

Til gengæld så går Hornbæk hele vejen. Her er en af landets bedste badestrande. Hornbæk er en af de hyggeligste havnebyer – måske endda byen tager pokalen på nordkysten og Hornbæk har tilbud, der strækker sig langt ud over en typisk Nordsjællandsk kystby. Det gør også, at Hornbæk lever igennem alle kalenderårets måneder med hver sine højdepunkter i hver sin måned. 

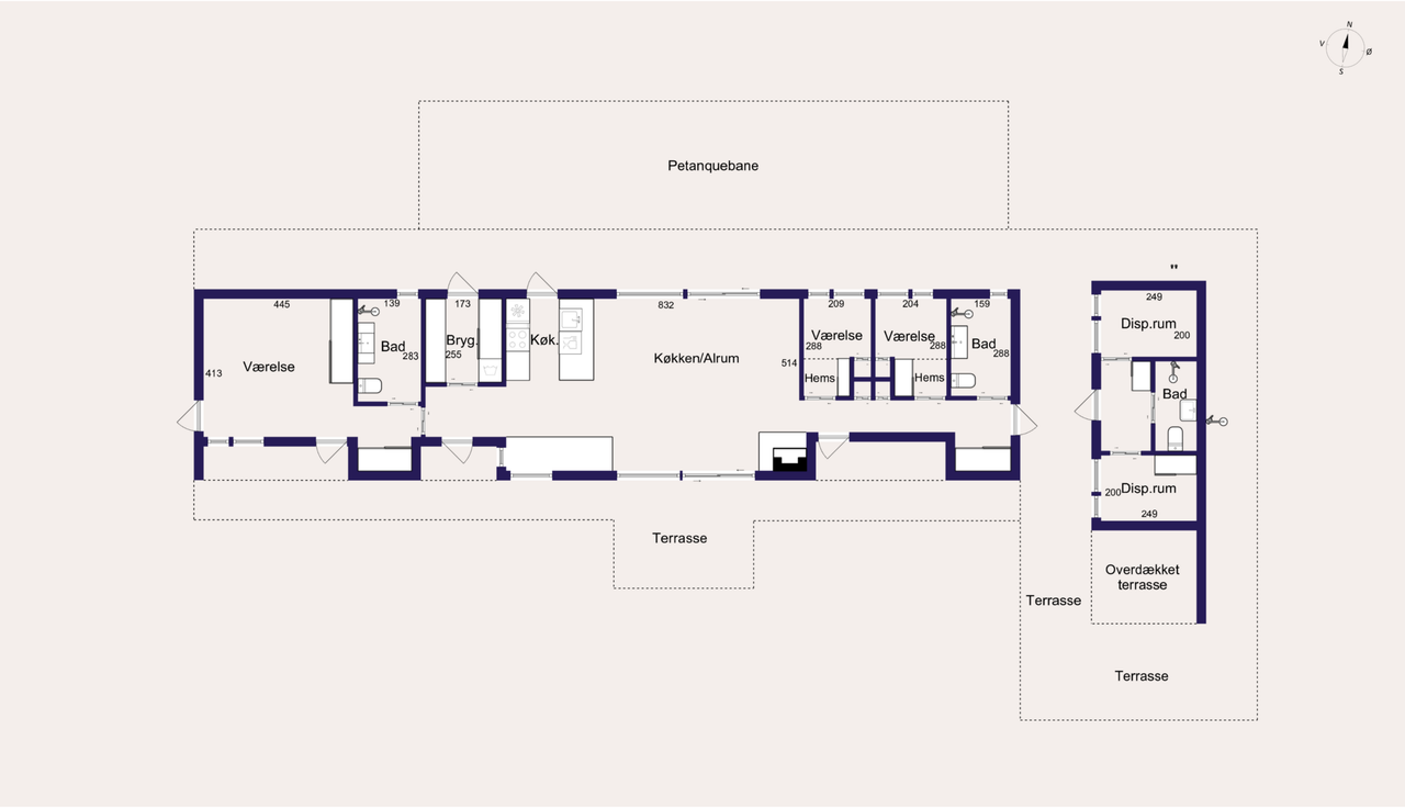
Huset er kompromisløst opført med en sjælden fin sans for det enkle arkitektoniske formsprog. 128 m2 (BBR) i hovedhuset og 30 m2 (BBR) i sideliggende udhus. Proportionerne er tænkt som et sted, hvor familien og venner er samlet i et stort midtliggende alrum med master bedroom i den ene side og to mindre soveværelser i den anden. Desuden badeværelse i hver sin afdeling. Fra begge bygninger mødes man omkring de mange forskellige terrasse- og haveområder, der hver især tilbyder sol og læhjørner hen over dagen. Et vidunderligt uderum, der som huset byder op til samvær og nærhed. En slags arena for fællesskab. Det lyder mærkeligt. Måske et fjernt billede, men når man smager lidt på det, og kigger sig omkring, så giver det hele mening. 

Yderligere et skur på 13 m2, der udover at være ganske funktionelt til opbevaring af havemøbler og andet godt, så placerer det sig som en naturlig afgrænsning af haverummet mod vejen. Et fint greb, der i ledtog med uendeligt mange andre fine greb har skabt et værested ud over det sædvanlige.

OPLYSNINGER OM BOLIGEN
KONTANT 11.000.000 DKK
EJERUDGIFT /MD 6.027 DKK
BOLIGAREAL 128 m2
GRUNDAREAL 922 m2
VÆRELSER 4
ENERGIMÆRKE
EJENDOMSTYPE FRITIDSBOLIG
BYGGEÅR/OMBYGGET 2021 / 0
KONTAKTPERSON

ADAM SCHNACK

ANSVARLIG INDEHAVER, EJENDOMSMÆGLER MDE & CAND.MERC. (PHIL.), SYN & SKØN FOR DANMARKS DOMSTOLE


+45 2623 4223

ADAM@ADAMSCHNACK.DK